tr
/
en
PROJELER
HAKKIMIZDA
ÖDÜLLER
BASIN
EKİP
İLETİŞİM
INSTAGRAM
PROJELER
HAKKIMIZDA
ÖDÜLLER
BASIN
EKİP
İLETİŞİM
INSTAGRAM
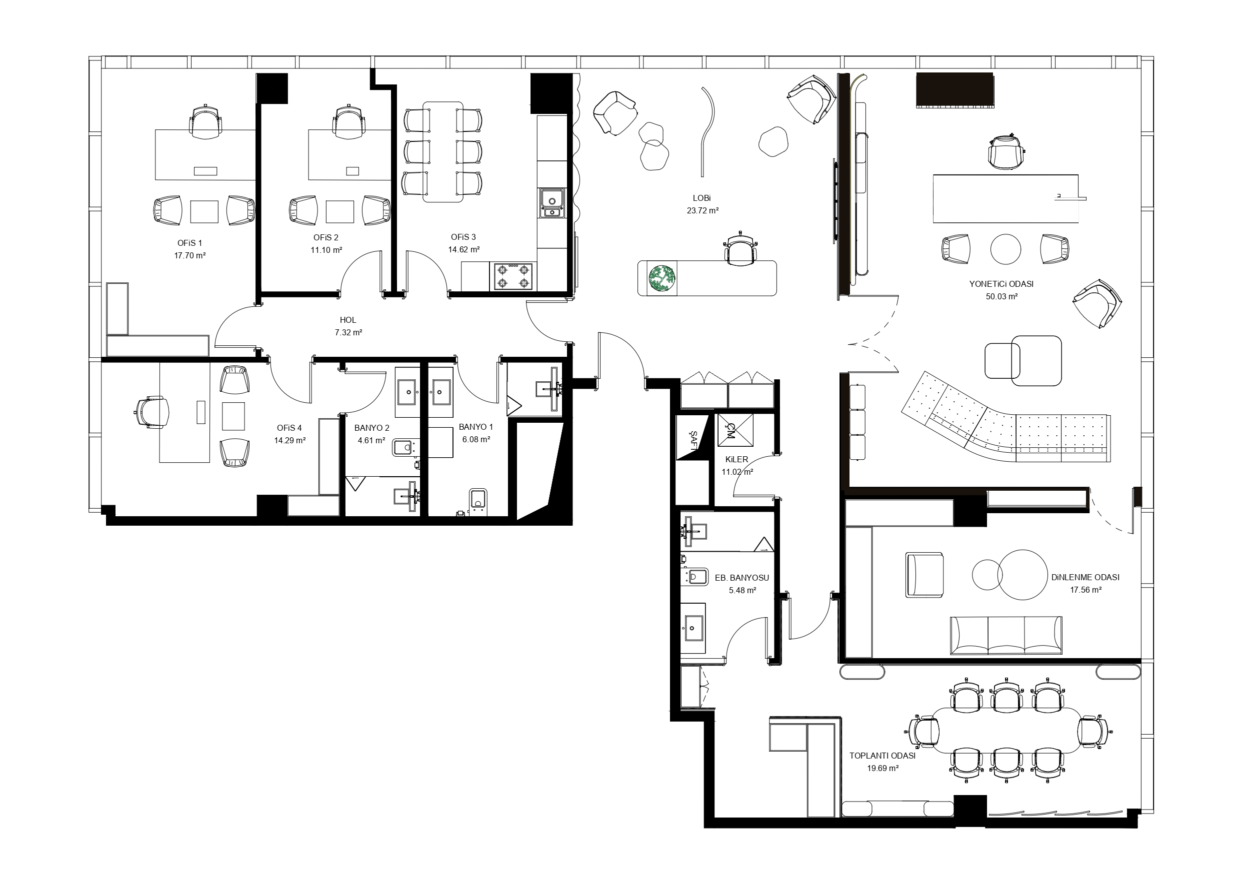
CUBES OFFICE
Category
Ofis
Proje Tarihi:
August, 2025
Alan:
200 m²
Lokasyon:
Cubes, Ankara
Design & Project Management